25
$599,900 Sale
Listed 9 hours ago
205 13925 Fraser Highway
· 2
· 2
· 2
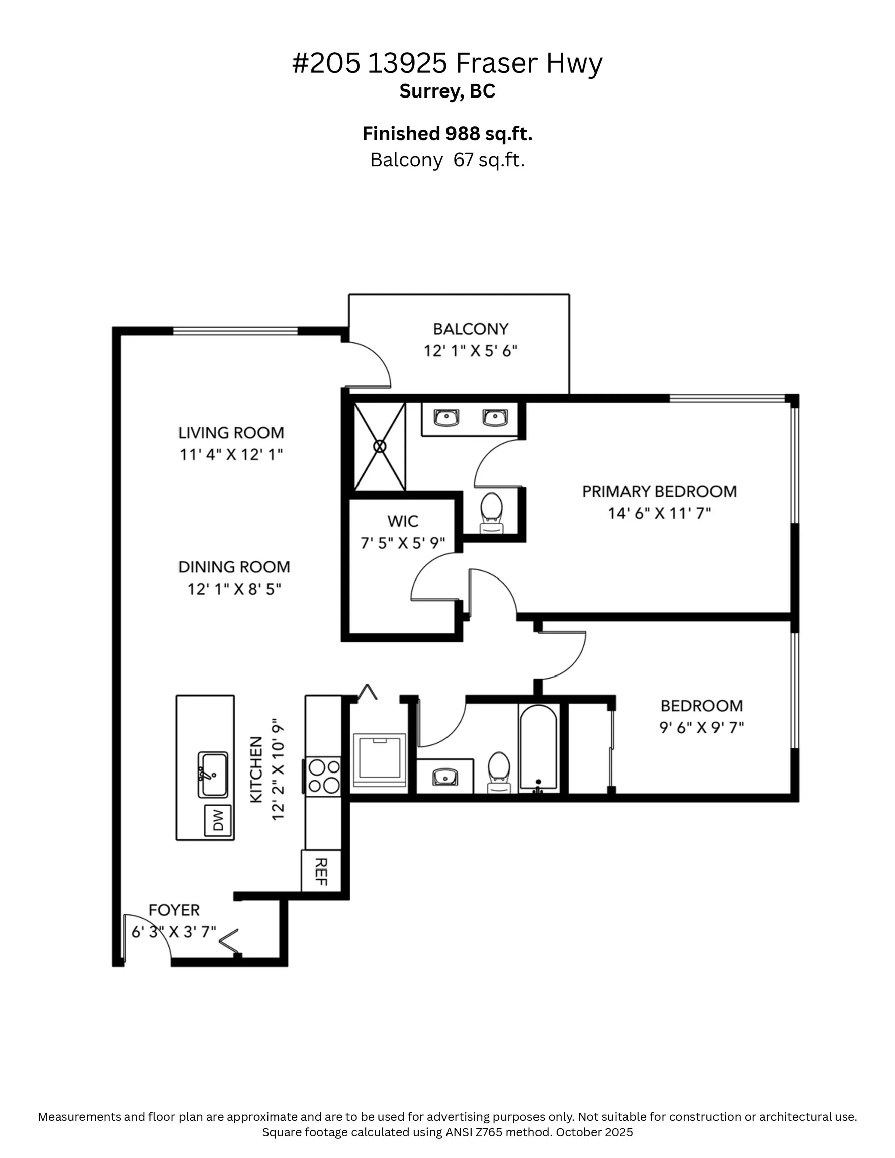
· 988
Key Facts
Key facts for 205 13925 Fraser Highway
Property Type
Condo, Other
Parking
2 parking
MLS #
R3058632
Size
988 sqft
Basement
None
Listed on
-
Lot size
-
Tax
$2,015.41 /yr
Days on Market
-
Year Built
2014
Maintenance Fee
$561.71 /mo
Description
Welcome to Verve – Where Location Meets Lifestyle! Steps from King George SkyTrain, SFU, Future UBC, Surrey Memorial Hospital, and Central City, King George HUB This 2 bed, 2 bath corner unit offers 988 sq.ft. of bright, functional living space. Enjoy upgraded Laminate flooring, a modern kitchen wit...h quartz counters, stainless steel appliances, and a large breakfast bar. The spacious primary bedroom fits a king bed and features double sinks and an oversized shower. Relax on your quiet patio with a treed outlook, away from Fraser Hwy traffic. Extras include in-suite laundry, 9ft ceilings, storage locker, and TANDEM (can fit 2 cars)parking. Building amenities: gym, yoga room, lounge, billiards, and guest suite. A perfect blend of style, comfort &convenience in one of Surrey’s best locations
Similar Properties (No results)
Room Types
Foyer
-
Dimensions 7'5 x 9'9
72.31 sqft
Kitchen
-
Dimensions 14'1 x 20'6
288.71 sqft
Living Room
-
Dimensions 13'2 x 15'10
208.47 sqft
Courtesy of: 1NE Collective Realty Inc.